Sidi Mouamar, Marrakech

Riad Saad

250 000 €

En requisition

🏡 Nomat Invest vous propose – Douiria de charme à Sidi Bou Amar
Située dans le quartier recherché de Sidi Bou Amar, apprécié pour son authenticité, son calme et sa proximité des principaux centres d’intérêt de la médina, cette douiria en réquisition de 37 m² au sol, bénéficiant de deux façades, représente un bien rare et parfaitement optimisé.
✨ Caractéristiques :
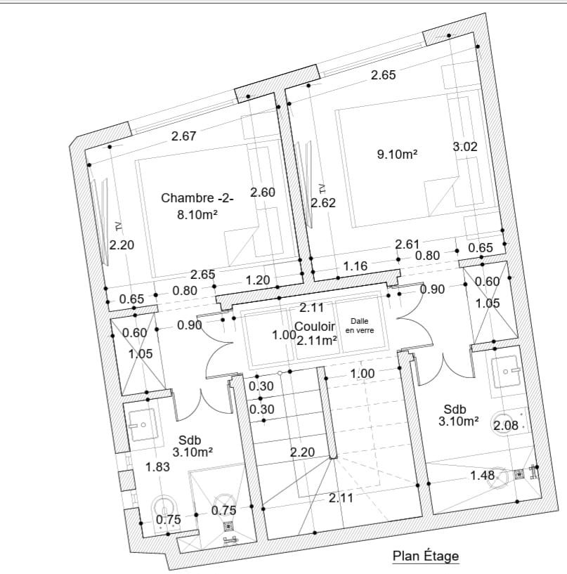
2 chambres
Roof top et sur-roof top avec bassin.

Belle luminosité grâce à sa configuration double façade

Riad de très belle facture avec finitions haut de gamme

Équipements modernes : domotique, climatisation gainable

đź“„ Aspects administratifs
Permis de construire obtenu
Plans autorisés
Permis d’habiter sera obtenu

⏳ Livraison
Livraison prévue dans 3 mois équipé et meublé.

Un bien idéal pour un pied-à-terre élégant ou une exploitation en location courte durée, alliant charme traditionnel et confort
contemporain.

📞 Pour toute demande, merci de contacter l’agence Nomat Invest Immobilier.

Descriptif Technique

Type de bien : Douiria

Surface au sol : 37 m²

Surface totale : 120 m²

Meublé : Oui

Surface habitable : 85 m²

Surface du terrain : 37 m²

Plain-pied : Non

Nombre de pièces : 4

Chambres : 2

Salles d’eau : 2

WC : 3

Indépendants : Oui

Terrasse : 1 terrasse de 20 m²

Climatisation : Gainable

Bassin : Oui

Salle de massage : Non

Hammam : Non

Jardin : Non

Sous-sol : Non

État général : Livré neuf

Chauffage : Gainable

Cuisine équipée : Oui

Cave : Non

Stéphane Collon

Houda Elkhorassani

Galerie de propriété